Lake Camp Shanty  

Design by Harold Duffield - Florissant, Missouri - USA
https://www.oneuglyboat.com/

24 & 26 ft Lake Camp Shantys


(click images for larger views)

The Lake Camp shown was designed for a client who currently has a fast boat at Lake Ozarks, but is looking for a central location boat that can be moored in the cove for the family.

The family and friends can use the lake camp as an overnight camp, in addition to day usage. While some family members are out water skiing, the others can enjoy a relaxing stay in the cove. At night the fast boat can be docked at the camp for family barbequing and swimming.

The lake camp boat can be designed to allow the top to be lowered for transport to far off places. All the boats shown can be made 8’, 10’, or 12’ wide determined by the deck plate size chosen. We are showing the boat as 11’ wide in the drawings.

Cost of the lake camp will be about $5k if you build it yourself, $6.5k for the kit, and $8k for the completed boat. Add a trailer and a 25 hp used outboard, and you have the boat, motor, and trailer for less than $10k.

If you see a boat that tickles your dream, let me know. We can discuss your ideas and plans by email or phone. Harold Duffield oneuglyboat@hotmail.com

The 24’ and 26’ Shantys can be assembled using 3 hulls for load capacity.

The 24 Shanty assembly is done as a complete unit on top of the trailer and then transported for launch. The Roof assembly shown is done from the inside.

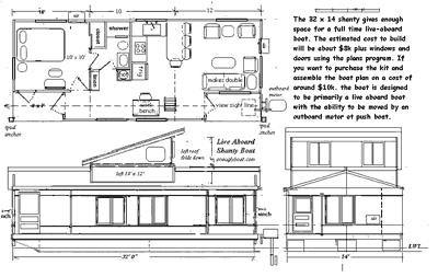
32 x 14 Live-Aboard Shanty

The 32 x 14 ft shanty gives more living space for the boater who wants to live aboard full time, yet will occasionally move the shanty from location to location. The shanty can be equipped with an outboard motor, or it can be pushed with a johnboat, or other powerboat. While under-way the pilot looks thru the open doors.

The boat as designed can be fabricated in three sections, and then bolted together in the water. It can also be lifted from the water for cleaning and maintenance.

The loft area can be furnished as a sleeping area for guests or children. Headroom in the loft runs from 30” to 5’ 8”. The loft roof folds down for lifting or for transport on a truck.

The design calls for full insulation in walls, ceiling, and floor, for comfort and economy.

The floatation of the boat can be aluminum hulls as shown, or you may choose to use enclosed dock floats if the boat is permanently moored.

The Kits for the Shantys can be quoted only upon the final design chosen and the amount of pre-fabrication required. Harold Duffield oneuglyboat.com

The 26’ – 36’ Shantys can be fabricated in sections, and then assembled in the water. This plan allows the boat to be put together on top of a simple transport trailer in your back yard. It does not require an offsite construction location for the assembly process. If you purchase the boat as a kit, it will take about two weekends to assemble each section of the boat. The 26 x 14 shanty is designed as a live-aboard and has three construction sections.

If you choose to have the components fabricated in your area instead of purchasing a component kit, we will work with your fabricator to make sure the parts are properly made. Although the plans for the boat are detailed, questions may arise while making the parts. In that event, we will be glad to assist your fabricator.

Floor panels for wider boats are aluminum pans that are fully insulated for comfort and economy. The floor pan arrangement can also be used on smaller boats needing insulation. The floor panels attach directly to the hulls or dock floats, and have an interior ½” plywood sub-floor.

Harold Duffield

About the designer: Harold Duffield - age 67 - grew up on the Mississippi River - was whats known as a "river rat". He has been messing about and building boats for over 50 yrs. Now he is offering plans and kits for fishing boats, shantys, house boats and even sailboats in aluminum as well as finished boats. https://www.oneuglyboat.com/

Other articles by Harold Duffield:

SAILS

EPOXY

GEAR
 

Due to problems with spam, we are now using this new comment format. You will have to sign up once to use it, but you will then be allowed to make comments to this or any other article. Click HERE to register - then refresh this page when you have finished.
Use the "Post Reply" button to comment (please don't click the "New Topic" button or you will end up lost).