So here’s the deal:
I grew up on the Mississippi River
in Iowa. On the road to town was an old Boat Builder
who always had a 14 ft John Boat sitting in his front
yard with a “for sale” sign. The boat
was a standard river boat of the area; Cross planked
bottom with two boards on the sides. A real wooden
boat, painted white and red with porch paint, and
hammered caulked seams for water tightness It was
a simple fishing boat for the river, and was not fancy,
or sleek, or white knuckle fast with a 200 hp motor
that couldn’t carry enough gas to get out of
sight. . It was just a good row boat to bang around
on the water. If you owned such a boat, when she wore
out or fell apart, you bought another one. She’s
probably good for 4 or 5 years of normal use. That’s
how boats were used in those days.
The for sale sign said “$35” and each
time my Dad drove down the road I always looked to
see if the boat was still there. Over the years the
boats for sale for $35 were constantly replaced, time
after time, as customers bought them and used them
up. I’m sure the old Builder didn’t make
much money, but he did sell lots of boats during my
childhood.
My question to you is, “can this simple concept
still be used for those that are hopelessly infected
with the cursed boat builder affliction? Can you still
build and sell one small boat at a time by simply
setting it in your front yard with a “for sale”
sign, and with the price boldly inscribed?”
Would anyone buy such a boat?
My answer is yes.: If the boat is well made, with
a design that is desired for the area waters, and
if the asking price reflects value and desirability,
then I think the same simple concept would work in
today’s boat selling markets.” You could
add some zing to your marketing strategy by parking
the boat at your local launch ramp on week-ends and
summer holidays. This would give you a much greater
exposure to your potential buyers. You could also
work with your local Lodges and Churches, and let
them raffle the boat off for charity. Your take would
be your sales price, theirs would be the excess profit..
If there are Bass or Fishing Tournaments in your
area, you could put the boat in the water and let
the Fishermen take her for a ride in the evening when
everyone has checked in and are waiting for the next
day’s competition to begin. These tournaments
also attract hundreds of “knot hole” Fishermen
who are hanging around the area to be near the big
guys. These ‘knot hole” Fishermen are
great buying prospects, so let these guys take her
for a spin too. Meanwhile, when not doing these clever
sales activities, park her in the drive way, or at
the donut shop, or the bait shop with a “for
sale” sign.
But what kind of boat would work for such a clever
build and sell plan?
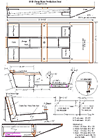
Here’s my idea and sketch plans for a boat
to make and sell in your front yard. She can be 14
or 16 ft, depending on your pocketbook. She’s
a hunk of boat for the dollar, and will be unbeatable
as a fishing or duck hunting platform She has tons
of storage space, and an above the waterline interior
floor that is self draining. She is un-sinkable and
un-swampable with over 700 lbs of floatation foam
in the bottom and the bow area.
 |
Here’s
my idea and sketch plans for a boat to make
and sell in your front yard. |
The boat is available to you in three
stages:
Plans Only gives you
the plans to build the boat and trailer yourself.
You make arrangements on your end to do the parts
fabrication and welding. This plan will work well
for a fabrication shop who has the equipment and skills
necessary to cut, bend, and weld the parts. You may
also purchase the dimensional cut parts including
the nose tanks.
Pre-Fabricated Components shipped
to you ready to be welded together. The parts are
pre-cut and bent and shipped to your shop for final
welding. You then have the welding done on your end,
or do it yourself if you have the equipment and skills.
One advantage to this plan is a savings on shipping
the pre-welded components. You may also purchase only
the cut parts from us and then buy the un-cut components
locally to save on packaging and shipping.
Complete pre-welded component package
can be purchased with all the parts made and welded
together. All you do is bolt the components together
using hand held tools.
Each of the programs offered has advantages depending
on your personal needs.
 |
14 foot Cheap
Skate Production Boat |
The construction is pretty straight
forward. The most economical way to build her is to
purchase a set of nose and stern flats from Uglyboat,
and then have your local fab shop bend them up along
with the other parts, and then weld the noses and
sterns on. The flats are computer cut to shape and
shipped as flat sheets ready to be bent. The cost
of this outside labor should run you less than $800
for the work. Most fab shops charge $50-$60 per hour
for their services. 12-15 hours should get the job
done. If you don’t want to mess with the plan
suggested, we can ship you the parts completely fabbed
and welded. All you need to do is bolt the beast together.
Your time required to get to this stage should be
around 6-8 hours for the trailer, and 15 –20
hours for the boat.
 |
Aluminum Trailer
Kit |
The hulls require bending only, without having to
be cut to dimension. The length and width of the boat
can be anything you want depending on the bending
capacity of your fab shop. Most shops have a 12 ft
brake that can handle the bends required. There is
a caveat however. You will need to bend 20 inches
deep for the hulls. With a 12 ft brake you cannot
bend 12 ft long and 20 inches deep because of the
frame restrictions. A 12 ft bend will require a 14
ft brake. That is why the design shown is for a 14
ft boat. The hulls on the 14 ft boat are 10 ft long
and can be bent on a 12 ft brake. If you want a longer
boat, you will either have to section the hulls, or
have a longer brake. Sectioning takes more time, and
therefore more cost but does not effect the strength
of the boat. If you section your hulls, plan on spending
an additional $100- $200 for added labor for the longer
boat.
Let me give you a rule of thumb for working on boats,
including boat building, repair, or any item added
or replaced on boats. That rule is: “if it takes
one hour to do on a home or car, it will take two
hours to do on a boat. If the boat is in the water,
it will take three hours to do.” The multiplier
can go as high as you want if you have fiends or neighbors
watch while you work.
Once the boat and trailer are assembled, you can
choose which deck arrangement you want. You can go
with a pontoon boat deck with railings and seats,
a bass boat arrangement with a center council, or
even an overnighter with a sampan shelter for sun
or weather protection.
One advantage the boat has is the versatility it
offers. It can start with one usage and then be changed
to any other as your needs change from season to season,
or year to year. This feature should be very appealing
to your customers if you make and sell the boats.
 |
Cheap Skate
14 Bass Boat |
Harold Duffield
About the author: Harold Duffield
- age 67 - grew up on the Mississippi River - was
whats known as a "river rat". He has been
messing about and building boats for over 50 yrs.
Now he is offering plans and kits for fishing boats,
shantys, house boats and even sailboats in aluminum
as well as finished boats. https://www.oneuglyboat.com/

Other articles by Harold Duffield:

|