|
|
 |
|
Veep 14
I got to try the VeeP
14 out today for a water test , or at
least that is what I am calling it. I really couldn't
wait to get her in the water. I had to make sure she
didn't leak before I put in the carpet. I still have
some finishing to do but at least she got wet. I am
so happy Thanks for your site. Keep up the great work.
I have more pictures on the Michalak forum under VeeP
14.
In order to get the boat to the pond for the water
test yesterday, the wife and I had to load the boat
in the minivan. I am telling you it sure was a funny
sight. The pond is about a mile from the house and
we have to go by an old grain mill that has converted
into a small engine shop.This is where the local old
guys hang out. As we went by, we waved a usual but
today we got quite a few smiles, a few nods, and I
know we will be the talk of the mill for a while.
Thanks for a great place to dream.
Bryan
KG4ENB
Maryville TN
|
 |
| XCR
Ready
Chuck,
The prototype XCR will be sailing on Saturday. The
photo below shows the sails being rigged in my boatyard
this afternoon. Just a few small bits to sort tomorrow
and she's ready to go get wet.

I'll have lots of stills as well as a YouTube video
from the Saturday session... if there is wind, of
course. Kellan's about to jump out of his skin, he's
so excited.
Chris Ostlind
|
XCR
Sailing
Chuck,
Chris and I got the XCR on the water this weekend.
I was very happy with every aspect of it. The wind
was pretty fickle, but enough to tell me that the
twin rig is terrific. I've attached a photo.

Now it's back in the shop for final tweaks and painting.
Once we have photos of the finished boat I'll send
another article.
Kellan Hatch |
 |
| Boating Safety
101:
If you name your boat after your wife, do not then
describe it to her as "beamy, with a flat bottom,
blunt nose, and saggy middle".
P A Christian |
 |
| New Sails in
Vladivostok
Here is my boat with sails I made from
Tanbark colored Dacron sailcloth
I purchased in your online store.
Good looking? Once again, thank you!
|
 |
That is What
Boat Builders Do
Chuck:
I just received the plans for the Egret
today and I am very excited. I also included pictures
of my latest projects just because that is what boat
builders do.
Thanks, Chris
Georgia
|
 |
Grandkids in Ice
Chuck,
Last weekend we went to visit the kids and grandkids
in Fairbanks. The snow was about gone there (we
still have quite a bit.) but the melt-off in the
borrow pit had about 3/8 inch of ice on it. But
the kids wanted to play with the canoes so they
broke the ice up and had a ball. Here's a couple
of pictures.
And here are pictures of the Halloween
skunk canoe and Devan's coracle both on their maiden
voyages.
Evan Hardman
Glennallen, Alaska
|
 |
| Trimaran Project
I'm sending some pictures of the project
we're just finishing. Filled in the old non-opening
lexan windows and installing 6 opening Beckson ports.
Came out fair. They look out of line in the photograph,
but are actually straight.
Lee Martin |
 |
| Kayak 4 a Kure
Black
Dog Kayaks provided tandem/triple kayaks to John Dubina
and Louis Breckenridge as they travel 2500 miles from
the Headwaters of the Mississippi River to the Delta
to raise money to research a cure for children's cancers.
They are working in partnership with the Lance Armstrong
Foundation.
John
and Louis have logged almost two thousand miles on
the River so far. They have posted several videos
of their trip down the river so far along with a map
of the Mississippi River showing their progress:
https://www.kayak4akure.com/Mississippiexpedition.html
For more information about their Black Dog Cerberus
21 Skin-on-Frame kayak visit
https://www.blackdogkayaks.com/tandem.html
Joel
Fleischer
Marquette, Michigan
https://www.blackdogkayaks.com
|
 |
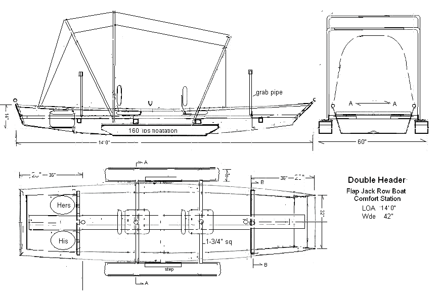
| Double Header

click image above for larger view
Features:
- Made from 1/8th inch marine grade aluminum plate
for commercial use in areas where the boat is run
aground on rocky stream bottoms or sandy shores.
All welded seams give long life with low maintenance.
- Over 300 lbs of positive foam floatation makes
the boat virtually unsinkable. Side Pontoons create
a very stable platform for capsize protection for
standing or boarding safety. Bimini top offers sun
and weather protection.
- Optional comfort station can be included that
offers each float party a necessary privacy enclosed
toilet facility that goes along on float trips lasting
several miles or hours.
- Raised seats offer older or impaired float customers
a comfortable stable float trip with shade from
the bimini for necessary sun protection. Ideal for
young children or for customers with disabilities.
- Lease Purchase allows boats to pay for themselves
out of rental income. A number of boats can be purchased
to expand your rental income into the senior market
not currently being tapped.
- Boats can be purchased either fully assembled,
or as kits that require some assembly by the buyer.
Price is determined by level of completion.
Info at www.oneuglyboat.com
or email oneuglyboat@hotmail.com
|
 |
| Seen This?
Ahoy Chuck,
Seen this? From Classic Boat mag June 07 issue.
regards, Benjy
|
 |
| Summer Breeze
At Sunset
 |
Chuck,
I thought you might like this picture my daughter
got of my son sailing the "Summer Breeze".
I could not have done better myself!
Evan Hardman |
|
 |
| Looking for
Sampan Plans
Chuck,
I am trying to locate some plans or someone to
build a Chinese Sampan similar to the attached
picture. It is about 26' long and 12' wide.
Thanks, Terry Niedermeyer |

|
|
 |
| Cherub
Sir ~ In the article
for a boat design for 'Cherub' the writer (James
Brown) refers to a voyage by Hank Hemingway in a Sam
Rabl designed 'Picaroon' from Mobile to Cuba.
I have wondered about this voyage for
years since reading Mr. Rabl's comments on the dust
cover of 'Boat Building in Your Own Backyard.'
Would you know whether anything was ever published
about this voyage?
Thanks,
Jackson Ehrlich
 |
PS. I'm building
an H-28. Photo attached. |
|
 |
| Low Profile
Pointy Skiff
Hi Chuck,
I will be submitting an article about the low profile
pointy skiff and its trip to the Sylvania Wilderness
into the hands of its owner.
Here are a couple of shots of the pleased owner,
Dennis, and the boat's first dip taken at Snap Jack
Lake, Sylvania Wilderness. I think she sits pretty.
It rows beautifully well and Dennis is thrilled. Dennis
and the boat is in Indiana floating and fishing the
Tippicanoe River.
Meanwhile, I would really like to build a lightweight
craft so that I can access and float two small rivers;
mainly the Embarrass and the
Red. They both have great smallmouth bass populations,
but the
access points are REALLY rugged. The boat would serve
as transport for two, park and wade fishing. In other
words we would paddle, then get out at good spots
to fish. The exit point on both streams is at a county
highway bridge and involves a very steep bank. The
last time I floated the Embarrass was in an aluminum
"mini drifter". We had to use the car and
rope to pull that up the bank. It is an experience
I don't want to repeat with that heavy thing.
Do you have any experience with a good pirogue design
for two? I'm shooting for something around 50 lbs
but still somewhat stable and I could throw up on
top of the van.
Best,
Jim Hauer
|
 |
| Aggie Boater

submitted by Bill Tosh
|
 |
| New to This
Boating Stuff
Hello,
I am a new reader, and new to this boating
stuff.
I designed a small boat that I thought would fit in
the back of my truck, it does, but oh so heavy, takes
atleast two to load. now I am working on a trailer.
have two other designs, a small one sheeter (lot's
lighter) and a
16' cuddy cabin. (this is the one that I have a question
about.)
In the hull program, when I finish the design, the
waterline and other stuff stays at zero. Maybe it
was because I went from keel to sheer then back to
keel on the inside of the boat. Is there a way to
correct this? Or do I just use straight cut's (no
lofting) and hope the rocker and everything else get's
solved during building.
 |
The boat that
I built is called lady (lady arrowhead - hull
file looked like an arrowhead). |
The boat that I built is called lady
(lady arrowhead - hull file looked like an arrowhead)
The single sheeter is called soda pop (hull file looked
like a soda pop).
thanks, marsboat |
 |
| Campskiff
Readers
of this magazine might be aware of the postings about
the construction of this boat as well as the trials
and tribulations of the maiden “voyage”.
I have been in correspondence over the last year
or so with a number of builders of either the “Campskiff”
or the deriviative “Redwing” from Chesapeake
Marine Design. All of my correspondents have commented
on one or another of the following problems.
The boat “squats”, the boat either doesn’t
steer or has an excessive turning radius or in a breeze
the bow tends to wander, especially at low speeds.
Some had all of these problems, especially the “Campskiff”.
(Including mine).
The articles previously published in this magazine
detail the advice and possible solutions. Here is
what works for the “Campskiff” and from
one correspondent, for the “Redwing”.
Squatting: Doel fins help a lot, maybe enough. Adding
angle to the transom to enable the engine to have
one more increment of adjustment. I assume that StingRay
hydrofoils would also work.
Excessive turning radius: Boats with little or no
steering problem have long shaft engines. (But most
other correspondents commented on the “wide”
turning radius. Otherwise the solution is to cut off
the skegs completely aft of the propeller. Bow wandering
is part of this problem since the bow tends to “skid”
so the boat won’t turn. The solution for bow
wandering is also part of the solution for excessive
turning radius.
Bow wandering: This is exacerbated by the squatting
so that has to be solved. I have added a 1 ½"
x 8‘ keel forward and a small fin forward. This
keel and fin keep the bow from skidding. I will be
reducing the fin bit by bit until it is useless and
then restore a previous version that worked.
My “Campskiff” now operates properly
and turns on a dime. It is for sale. Please see ad
below.
Bob Chamberland
************************
For Sale: 18 foot “Campskiff”.
This is the Chappelle original upon which the Stambaugh
designed “Redwing” is based. Readers
of this magazine may be aware of a series of articles
about this boat that have appeared over the last
few years chronicling the building of this boat
and problems at the maiden “voyage”.
The problems have been resolved though modifications
that have been tried have to be made permanent.
This boat is a work in progress. Running lights
are installed but not wired into a panel. There
is no panel installed yet. There is a battery box
built in but no battery. Bunks are built in with
storage under however there are no “mattress”
pads. This version is built with the “flip-up”
cabin top, however no “rain skirts”
are installed nor is there anything as yet to hold
the cabin top in the flipped position. The cabin
interior is painted but is not fitted out for camping.
Included is a model SLB30BS Shoreland’r trailer
bought new for this boat. The trailer has brakes.
The carrying capacity of the trailer is 3000 lbs.
Power at present is a 5 hp Nissan 4 cycle motor.
The give away price is $6,500.00.
Bob Chamberland 231 271 4231
|
 |
 |
Hi Chuck, Sandra
-
Getting close tho' a bit frustrated with the
last details ... windows, hatches, paint trim
& inspect/register the trailer. Was tickled
when I installed the rigging .. sets up fine,
including the two polytarp sails I cut.
Be well.
Bob Throne |
|
|
|
|
|
|
|
|
|
|
|
|
|

SS Screws |
|