Jonsboat
Hi Chuck.
Just to let you know what I have been up to, I am modifying Jonsboat
somewhat. I noticed that Campjon has 24 inch sides. I got into
me cad program and worked up 22" sides for Jonsboat. I did
this because of the long shaft Honda 9.9, and also because I like
the extra freeboard.
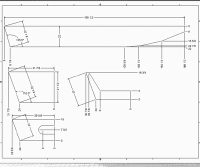
I have enclosed a gif of the cad drawing. In it are detailed measurements
for transom, former, forward bulkhead, and side panels.

(click to enlarge)
The seats will only be 6" high and completely
sealed for flotation. I went with 6" high because I will
be mounting pedestals and swivel seats for fishing on top of those.
I'm not sure if Jim would approve of my modifications, but I believe
they are not drastic enough that any of the structure will be
comprimised.
Mikeeeeeeeeeeeeeee!
(Mike Saunders)
|
|
|