Folding Tri Study Plans

The following is a rather rough and incomplete description of the main hull of my folding tri; however it contains all essential features.

First let's have a look on the main hull from top:

fromtop

From the side:

fromside

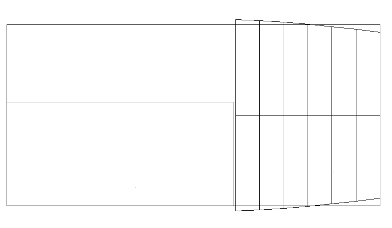
and from the front:

fromfront

The odd board protruding at the side was originally meant as leeboard mount. It has become obsolete by the decision to mount the leeboards to the platforms and now gets much use as a step for boarding the boat while on the trailer (and probably in the water as well).

The 3D wireframe model gives a better notion of the spatial geometry:

wireframe model

An explosion sketch should make clear how inner structure is built up. The outer hull panels and decks are left out.

inner structure

Now for the panels (Note these are 5' x 10'):

Panel 1 is cut two times identically from 5 mm ply. It contains the front part of the upper side and one platform part.

panel1

Panel 2 is also cut twice from 5 mm ply. It contains the rear part of the upper side, the front and rear part of the lower side, the vertical stiffeners between bottom and the aft cabin double bottom and the front cabin double bottom (in the size needed for 20cm Styrofoam; in fact I only used 5cm here, so the double bottom is actually a bit smaller), which is only needed once.

panel2

Panel 3 is also cut twice from 5 mm ply. It contains the vertical stiffener supporting the seat bench and the second platform part. (In fact we have now 4 platform panels since the two platforms are built as sandwich from 2 panels and 5cm styrofoam, plus some framing).

panel3

Panel 4 is a single 5 mm sheet and contains the cockpit and rear cabin double bottoms. Note that the latter didn't fit so I had to make two separate strips.

panel 4

Panel 5 is a single 10 mm sheet and contains foredeck, transom and rear bulkhead.

panel5

Panel 6 is a single 10 mm sheet and contains rear deck and front bulhead.

panel6

Panel 7 is a single 10 mm sheet and contains the seat benches, the front part of the bottom, the foremost bulkhead and a leeboard and the rudder (By now I decided not to make them from 10 mm ply, anyway).

panel7

Panel 8 is a single 10 mm sheet and contains the rear part of the bottom.

panel8

Panel 9 doesn't really exist, I used it to show parts made of the scrap of the other panels: The front cabin double bottom in its real size, the bulkheads under the seat benches and the top of the leeboard frame.

panel9