Low Budget Houseboat

by Gregg Onewein
Drawing
Bio
For purposes of this design exercise I'm going to make a couple of assumptions. First, the "few thousand dollars" in the bank that you mention means an upper limit of perhaps $6000.00. More than this would surely stretch that particular figure of speech.

Second, I'm going to assume that "personal energy conservation" is always important; that is, building/hassle time should be kept to a minimum (this in fact brings up redneck corollary #l: "take it easy, who likes to work? Have another beer.").

Third, recycling is righteous (restated as redneck corollary #2 we get: "Never buy nothing new; it's cheaper to reuse or fix than to make all that extra money"—see corollary # 1).

Given the above observations, it seems to me that the simplest and most obvious solution to our mutual friend's houseboat idea is to buy an older 18 to 20 foot travel trailer and park it on a quickly built 24 to 28 foot barge, and Presto! you have a floating home . The advantages to this scheme are: 1) you start with a fully self-contained vehicle with fresh water tankage, complete electrical, sewage, propane and maybe even air conditioning built in 2) A pre-built interior complete with all appliances designed by a "professional" who can do at least as good a job as you could do, complete with a convertible dinette! (See fig. I for plan view of a typical new 20 footer). 3) Pre-owned trailers are relatively cheap. A quick look at my local want ads convinced me that appropriate units can be purchased for anywhere from $500 to $2500 (an old Airstream-probably with that cool real wood paneling!). 4) The self- assured smugness that comes from having come up with a simple cheap solution.

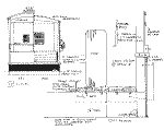
The disadvantages of this idea are: 1) You still have to make the barge (details follow); 2 ) What you've got here looks like a old house trailer parked on a barge and it won't impress your ex-wife-at least not mine! (See fig. 2)- so therefore you need to do a little camouflage to make it more acceptable to potential girlfriends, the marina management, your liveaboard neighbors, and the ex.— in that order! (Please see fig. 3); 3) Loading and unloading would require a good paved launch ramp, a substantial purpose-built ramp, patience and a little reassembling of the foredeck "trellis." It would probably take the better part of a day with a little bit of help and a couple of beer breaks. Luckily/presumably it would not be done often.

The barge itself would probably be most easily and cheaply built of 1/8 inch mild steel (especially if Kenny down at the muffler shop will help out for $15 bucks an hour plus beer, like he said when he thought you were joking). At 10x28 with 2 foot sides, and I foot frames, the materials list comes to approx 12- 4x10 foot sheets of 1/8, perhaps 160 feet of angle iron and less than 200 feet of 1x6 T and G "cardecking" (see fig.4).

The side- framing, roof, trellises and sheathing are standard house construction/lumberyard materials and are overbuilt (2x2 framing would probably work fine instead of 2x4). I'd be surprised if you spent more than $1000 on the wood. The whole project would probably take two experienced welder/builders a month of strenuous weekends.

As for mobility, an outboard bracket could be easily welded to the transom, but I would be more inclined to raft up the 12- foot aluminum skiff at the aft "corner." With a large prop and a windless day 15 hp ought to do it. lf Luann and her fancy lawyer call too often, unhook and anchor up the lake. If they still wont go away, offload the trailer, hook it up to the Chevy and take off for the Mountains. The empty barge would make a damn fine beer garden back at the marina if rented to the right folks, and generate a few bucks a month rent too!

Drawings:

Bio:

I live on Bainbridge Island in Puget Sound where my wife Jill and I are at the tail end of raising our two sons Haven 22, and Harte 17. These days I teach at a alternative high school 2 days a week, do a little art and build small boats. Once upon a time we lived for approx. 6 years on a 50 foot planked housebarge that I designed and we built. I still have study plans if anybody's interested.