|
Building Tennessee
by Charles Leinweber chuck.leinweber@gmail.com
 |
Sometime in 1995, my son Bonham and I
decided that we would build a boat. I wanted to build a cruising sailboat, but he wanted a
fishing boat. Tennessee was our compromise. I could cruise and he could fish. In the
ensuing years, Bonham has discovered that he hates cruising, but my wife, Sandra, has
discovered that she likes it. That is fine with me, she is a much better cook anyway. |
| I had built a couple of 8 ft. prams,
and a self-designed catamaran which was a disaster. I was ready to use someone else's
design, at least until I had a little more experience. Phil Bolger's designs have always apealed to me. He seems to get a
nice balance between what makes a boat work well, what makes it look good, and what makes
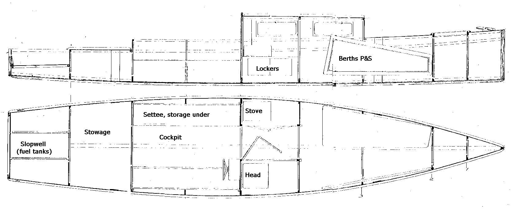
it easy to build. As you can see from the line drawing Tennessee is
29' long on a 6' beam and 4' high with about 4" draft, really just a big
flat-bottomed canoe. She's much more than a canoe of course. She is a great little camp
cruiser for two with lots of room for gear. She is not fast, but she handles a chop very
well, and will float in very little water. At eleven or twelve hundred pounds, any old car
will tow her. |
 |
| Since this was going to be a simple boat, I didn't
want to go all out on materials, but I didn't want the very cheapest either. I used
Douglas fir plywood and western red cedar. In a few places where strength seemed important
I used southern yellow pine. Everything was attached with System Three epoxy and stainless steel screws. All
surfaces were primed with epoxy before being painted, or glued. |
 |
I got the plans from Bernie Wolfard at
Common Sense Boats. My sixty bucks got me
one sheet of instructions. I guess I was expecting more, but everything I needed to know
was there on 16 by 20 inches. The building concept is inspirational. All frames, which
happen to be bulkheads, are internal. All longitudinal stringers such as chine logs and
cabin beams are external. Therefore, absolutely no notching is necessary. |
| Here is how the building went: first the bulkheads
and the transom were constructed. Then four sheets of plywood were joined for the sides
and the profile was cut out. A 1x2 was attached to center of each bulkhead in order to
line everything up. |
| Next, the chine logs were attached to
the sides and the bottom placed across the chine logs and the bulkheads. We used two
layers of three eighths ply with the joints staggered. Next the keel was attached, and the
bottom was completely finished. |
 |
 |
When the boat was turned over, the
rest of the longitudinal stringers, which serve as rub rails, were attached. There are
four of these stringers in all. One is at the cabin top, one at the foredeck and cockpit
coaming level, one full length at the lazarette level, and finally, the chine logs. We later added a canvas sunshade, wheel steering, a Garmin gps, a depth finder, vhf, and most important; a Honda 10hp 4stroke motor. It was expensive, but it
is quiet and reliable. At full throttle it gets about 15mph, at half throttle, 15mpg. |
| We named her Anomaly, because she
is so different from other boats. Her maiden cruise was from Port Aransas to the beginning of the land
cut south of the entrance of Baffin Bay on the Texas Gulf coast. The next year, she
cruised from Corpus Christi to Port Isabel and back on the inside with a stop at the
Mansfield jetties. Anomaly has also seen action on Lake Buchannon, Lake Ivey, and Lake
Travis. |
 |

|